欢迎光临2026成都糖酒会网站!
语言选择: 中文版

展会概述

  • 展馆介绍

展馆介绍

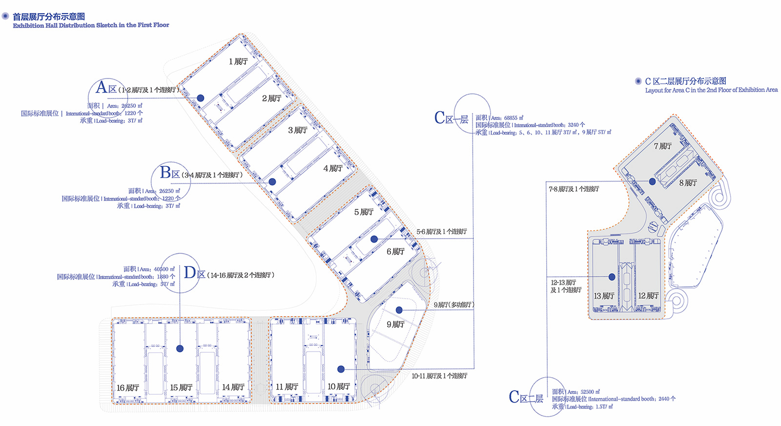
总建筑面积

570000

室内展览面积

205000

室外展览面积

100000

国际标准展位

11000

标准展厅

15

多功能厅

1

西博城为承接大型高端展会活动而生。场馆总展览面积57万m²。其中室内展馆20.5万m²,有标准展厅15个、多功能厅1个,可布置国际标准展位1.1万个;室外展场10万m²,可用于展览、室外路演、大型演唱会、开闭幕仪式及大型商业活动。


截至2019年底,共承接展会、会议、活动220个,办展面积437万㎡,其中获得UIF认证展会6个,举办国际型展会及活动19个,共接待近100个国际和地区参会参展,接待参展商23000余家,专业观众200余万人次。西博城展陈环境、硬件设施、餐饮配套、现场服务、管理水平获得了业界好评。


上一条:展馆交通 下一条:没有了!

联系我们

公 司:2026成都糖酒会

联系人:林经理

电话:

手机:

E-mail:965612967@qq.com

地 址:上海市闵行区2345号